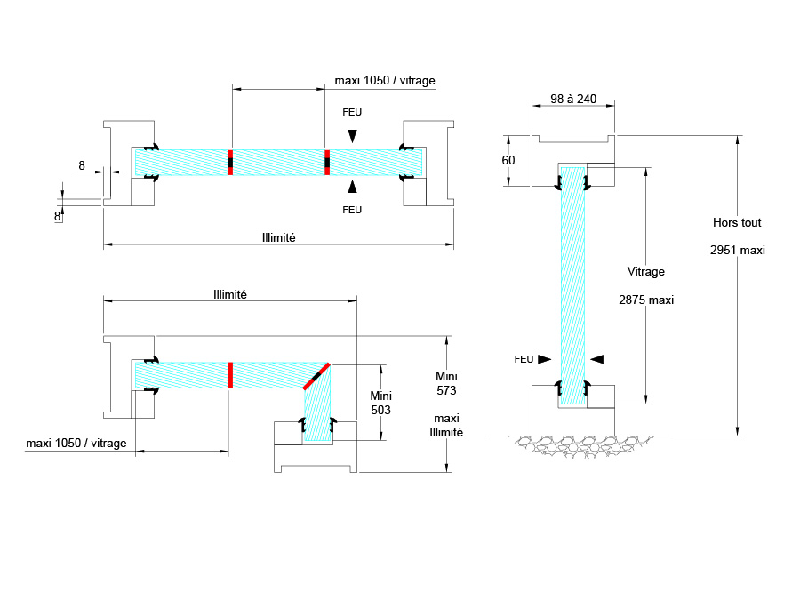
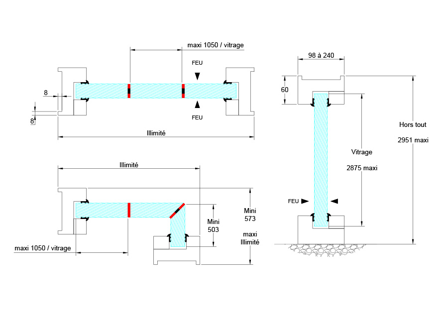
CROUZI Cloison vitrée bord à bord VISION LINE (CORNER) EI60
Hauteur maximale : 3000 mm - Poids maximal du vitrage : 175 kg
Bois à peindre : CHÊNE LCA KKK / SAPELLI / CURUPIXA
Bois à vernir : CHÊNE LCA DKD / CHÊNE MASSIF / SAPELLI
Cloison vitrée Vision Line (bord à bord droit) :
Montants et traverses périphériques de section 98 x 60 mm à 240 x 60 mm
Cloison vitrée Vision Line Corner (bord à bord avec angle) :
Angle d'assemblage entre 2 chassis de 90° à 270°
Jonction avec poteaux ou à facettes entre 2 châssis Vision Line ou Vision Line Corner
Le vitrage est maintenu par simple ou par double parclosage en bois
Etanchétité entre parcloses et vitrage faite par : joint Flexilodice à bourrer
PYROBEL 25 VL - PYROBEL 25 EG VL
PYROBEL 25 VL CORNER - PYROBEL 25 EG VL CORNER
Dimensions maximales du vitrage format portrait : (H x L) 2875 x 1050 mm, largeur mini 510 mm
Dimensions maximales du vitrage format paysage : (H x L) 1200 x 2000 mm, largeur mini 480 mm
Variantes de vitrages : films adhésifs, sérigraphie, impression numérique, sablage total ou partiel
Non fourni par CROUZILLES - Epaisseur maxi 20/10 mm
Fixation par colle inifugée
Pose dans cloisons :
Murs maçonnés ou béton cellulaire ép. 150 mm mini
Légère : plaques de plâtre 98/48 mini EI90 mini de hauteur maxi 3800 mm
Bloc-portes CROUZILLES (EI30 ou EI60)
Châssis plein (HAUTEUR MAXI 3400 mm) - PV EFR-21-002983
