CROUZI FEU TRV EI60
Bois à peindre ou à vernir : SAPELLI
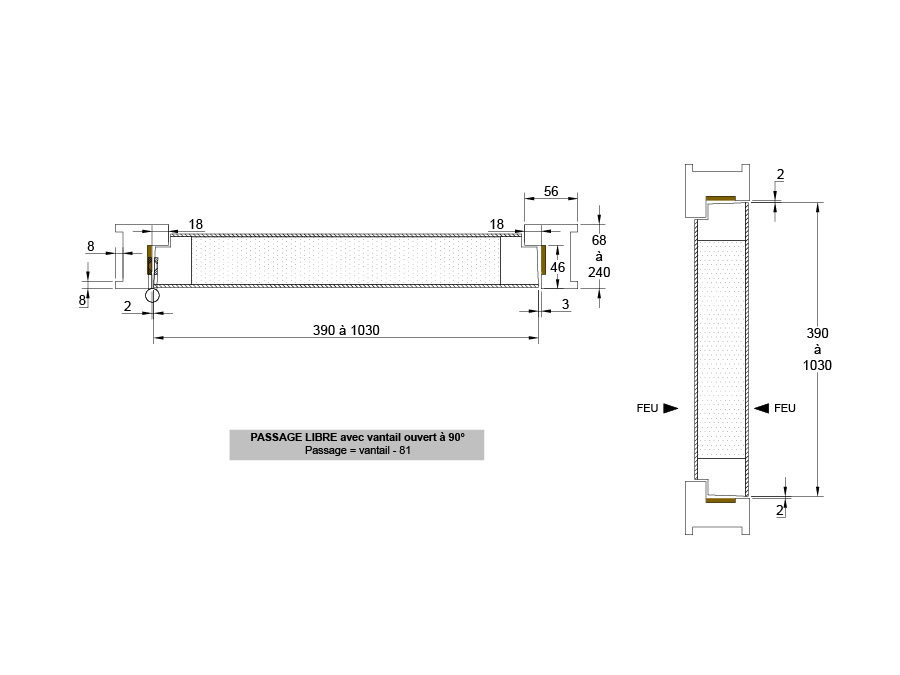
Feuillure simple de 46 x 18 mm
Contrefeuillure aux 4 sens
Cadre :
Bois à peindre ou à vernir : SAPELLI
Joints feu posés en usine sur l'huisserie
Joint de confort dans l'huisserie (optionnel) - feuillure dans l'huisserie passe à 50 x 18 mm
Paumelles 160 x 80 mm inversées en acier roulé
BRICARD : Robust 193
VACHETTE : D12R
7 tailles de trappes carrées standards en stock disponibles (nous consulter) :
430 mm - 530 mm - 630 mm - 730 mm - 830 mm - 930 mm - 1030 mm
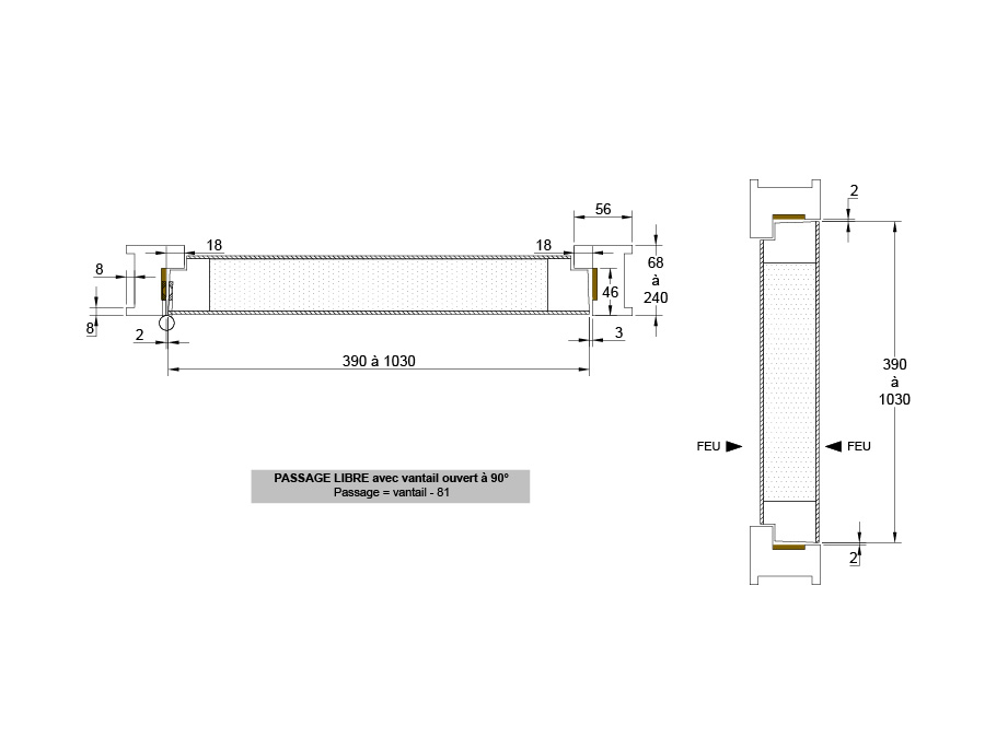
Possibilité de dimensions sur mesure : Mini 390 mm - Maxi 1030 mm (H ou L)
Pose dans cloisons :
Murs maçonnés ou béton cellulaire ép. MINI 70 mm - Légère : plaque de plâtre 98/48 mini - Carreaux de plâtre ép. MINI 70 mm

