CROUZI FEU TRH EI60
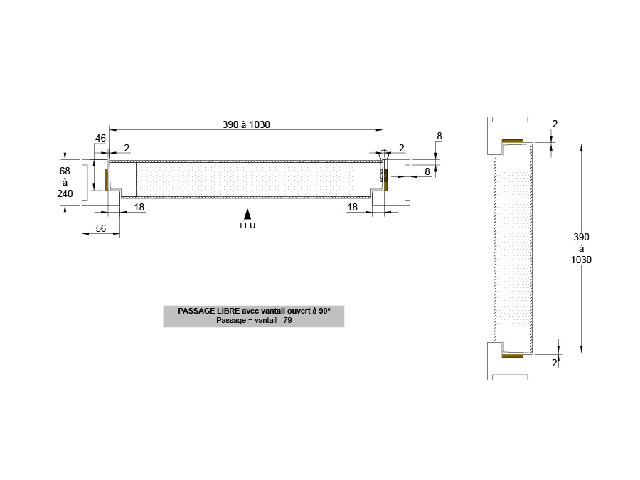
HUISSERIE (68 Ã 240) X 56 mm MINI - Assemblage par tenons et mortaises
Bois à peindre ou à vernir : SAPELLI
Feuillure simple de 46 x 18 mm
VANTAIL - épaisseur de 56 mm : 2 faces PREPEINT, STRATIFIE ou PLACAGE
Contrefeuillure aux 4 sens
Cadre :
Bois à peindre ou à vernir : SAPELLI
ETANCHEITE
Joints feu posés en usine sur l'huisserie
Joint de confort dans l'huisserie (optionnel) - feuillure dans l'huisserie passe à 50 x 18 mm
ARTICULATION
Paumelles 160 x 80 mm inversées en acier roulé
SERRURES MECANIQUES A MORTAISER
BRICARD : Robust 193
VACHETTE : D12R
INFORMATIONS COMPLEMENTAIRES
7 tailles de trappes carrées standards en stock disponibles (nous consulter) :
430 mm - 530 mm - 630 mm - 730 mm - 830 mm - 930 mm - 1030 mm
Possibilité de dimensions sur mesure : Mini 390 mm - Maxi 1185 mm (H ou L) - Surface maxi : 1,27 m²
ENVIRONNEMENTS
Pose dans cloisons :
Béton ép. MINI 110 mm

