CROUZI SPF/2V FP APPLIQUE
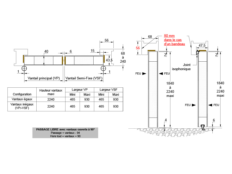
Bois exotique de 68 x 56 à 240 x 56 à simple feuillure de 43.5 x 15. 4 paumelles de 140 x 70 en acier roulé ou inox par vantail. Talon de 50 mm.
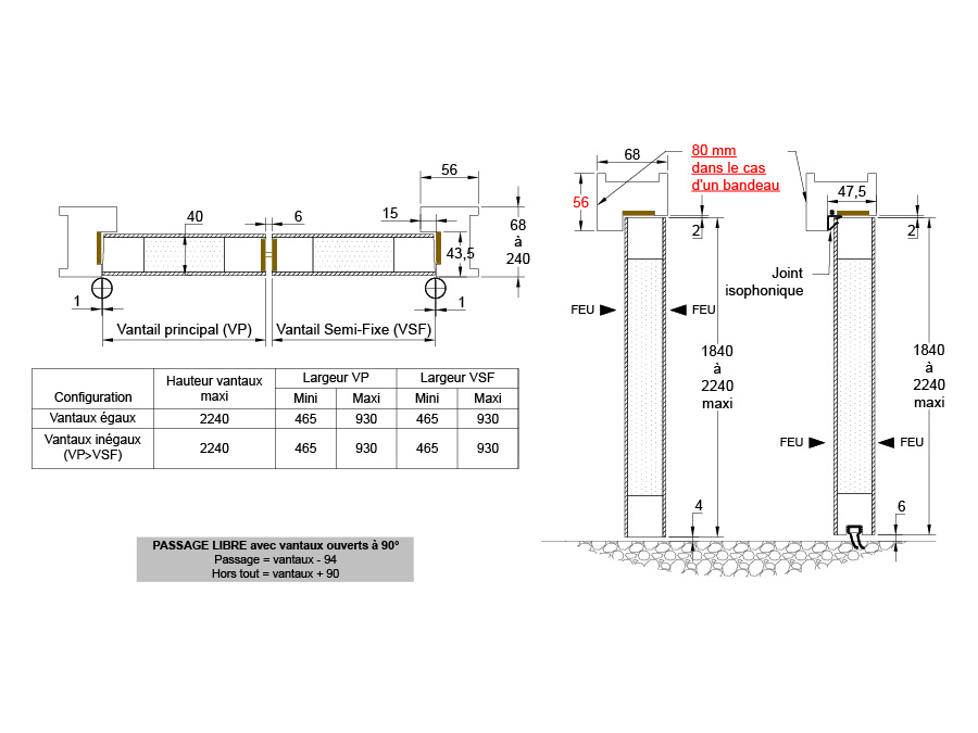
Mise en oeuvre du bloc-porte dans mur banché, cloison maçonnée, cloison type carreaux de plâtre, cloison type cloison légère, ou cloison vitrée. ATTENTION l’épaisseur de l’huisserie varie en fonction du type retenu.
Symétriques ou asymétriques par rapport au plan médian de fermeture et de constitution identique.
L’âme est un panneau d’anas de lin de 33.5 mm d’épaisseur.
Le cadre et l’âme sont revêtus sur chaque face par un panneau de fibres de bois dur de 3 mm d’épaisseur environ.
Sur les chants verticaux, au plan de fermeture, joints intumescents avec languettes caoutchouc.
L’épaisseur de la porte varie suivant le revêtement de 40 à 42 mm.
Les joints intumescents sont collés en usine.
Voir rubrique DIVERS pour revêtements, protections et garantie.
Ferme-portes TS 91 - TS 92 (DORMA), HL105 - HL305 (LEVASSEUR) TS WOOD (GEZE) avec glissières standards + ventouses 24 ou 48 Vcc type à rupture (pose au mur ou au sol) ou émission (pose au mur).
Possibilité de remplacer les glissières standards par des glissières G 93 EMF DORMA (24 ou 48 Vcc type à rupture) qui intègrent le dispositif d’arrêt électromagnétique.
- Bandeau BCS 2000/2 (LEVASSEUR) en 24 ou 48 Vcc type à rupture ou émission qui intègre le dispositif d’arrêt électromagnétique, fixé sur la traverse haute de l’huisserie. ATTENTION la traverse d’huisserie passe de 56 mm à 80 mm.
Possibilité d’équiper ce bloc-porte avec oculus, à condition de laisser 150 mm de chaque côté.
- PYROBEL 16 de 800 x 400 maximum ou diamètre 300 - 400 ou 500 (l’ensemble restant EI 30).
- PYROBELITE 7EG ou PYROBELITE 10 de 800 x 400 maximum ou diamètre 300 - 400 ou 500 (l’ensemble devenant EW 30).
Possibilité de mettre deux oculus superposés (150 mm minimum entre eux) sous réserve que la surface totale ne dépasse pas 0.32 m2.
- Possibilité d’équiper l’huisserie avec joint isophonique qualité “feu”. Celui-ci étant livré avec lèvres reliées par une languette, il est impératif de l’enlever avant utilisation et balai en partie basse de chaque vantail.
- Contacts de position de sécurité (portes fermées) 10405 (EFF-EFF), placés dans les montants de l’huisserie.
- La fermeture de chaque vantail peut être assurée par une serrure antipanique en applique de référence 8902 (JPM) à deux points haut et bas.
- Condamnation des vantaux par serrures 2 points en applique CAVERS (STYL’BARR), pour cylindre européen.
- Verrouillage d’issue de secours ou contrôle d'accès à poser en applique sur la traverse d’huisserie VE 1000 (JPM), TV 100 - TV 200 (DORMA) ou SMA 2 points (SEVAX) mais ATTENTION la traverse d’huisserie passe de 56 mm à 80 mm
ATTENTION : Les verrouillages sont proposés en 24 ou 48 volts type à rupture. SEUL le TV 100 n’existe qu’en 24 volts.
Les verrouillages nécessitant des largeurs minimales, variables en fonction du modèle choisi, merci de nous consulter.
PYROBELITE 7 EG (EW 30) - PYROBELITE 10 (EW 30) et PYROBEL 16 (EI 30) : Les dimensions hors tout de chaque vitrage seront au maximum de 2253 mm de haut x 955 mm de large et de 1008 mm de haut x 1860 mm de large.
(l'huisserie passe de 68 x 56 mm à 80 x 56 mm minimum)
PYROBELITE 10 (EW 30) : Les dimensions hors tout de chaque vitrage seront au maximum de 3100* mm de haut x 1320* mm de large (* avec une surface maximale de 3,79 m2) et de 1130 mm de haut x 2240 mm de large.
PYROBEL 16 (EI 30) : Les dimensions hors tout de chaque vitrage seront au maximum de 2874 mm de haut x 1700 mm de large et de 1450 mm de haut x 2750 mm de large.
(l'huisserie passe de 68 x 56 mm à 80 x 56 mm minimum)
PYROBEL 25 (EI 60) : Les dimensions hors tout de chaque vitrage seront au maximum de 2860 mm de haut x 1910 mm de large et de 1540 mm de haut x 2530 mm de large.
(l'huisserie passe de 68 x 56 mm à 98 x 56 mm minimum)

